Deprecated: implode(): Passing glue string after array is deprecated. Swap the parameters in /home/www/clients/client43/web100/web/includes/Medoo.php on line 217
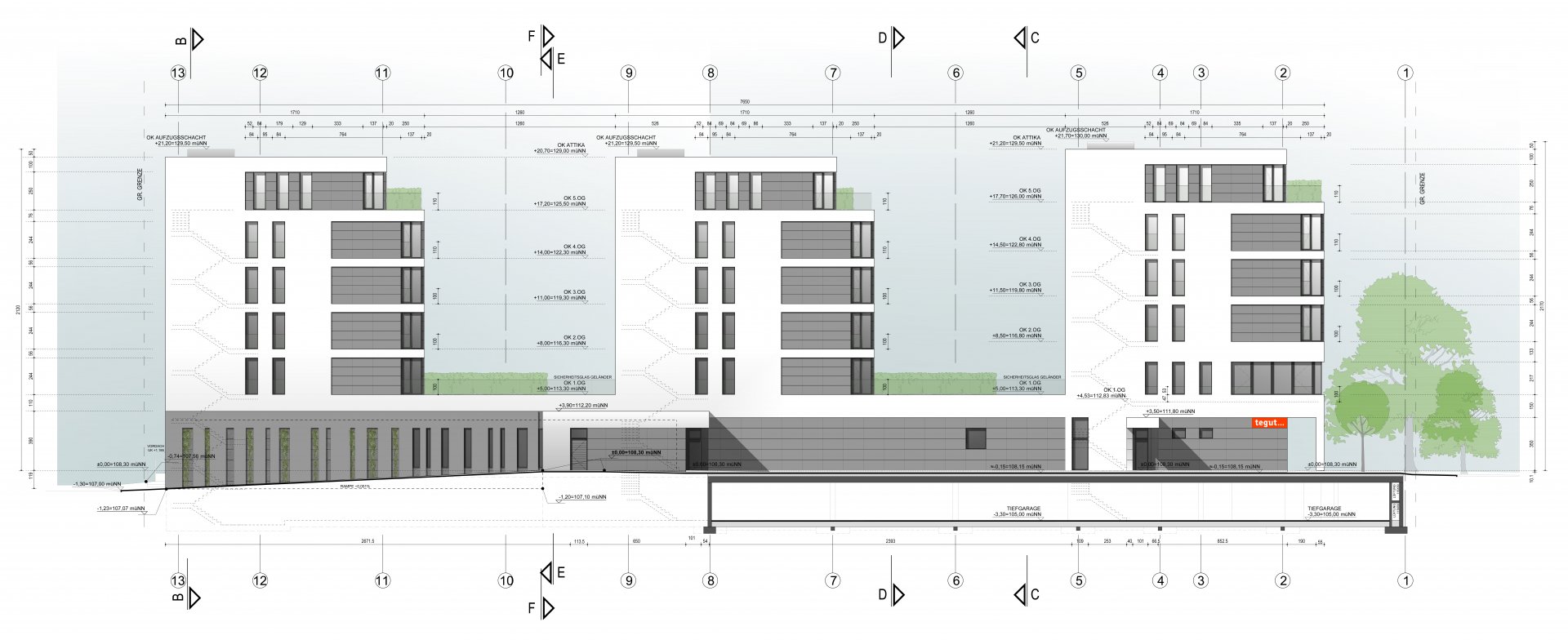
Tym razem przedstawiamy inwestycję obejmującą zespół zabudowy wielorodzinnej wraz z użytkowym parterem. Projekt- od koncepcji po projekt budowlany- powstał w ramach podwykonawstwa dla firmy DAS Architekturbüro.